FAMILIAS DE PRODUCTOS

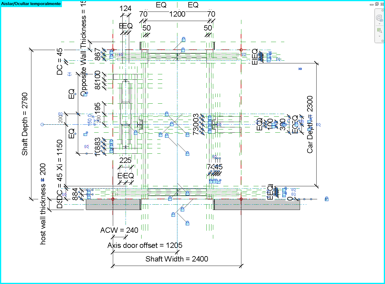
El modelado de familias de productos tiene como objetivo contar con los modelos tridimensionales, con toda la información necesaria y configurados de forma paramétrica, lo que permite ajustar alturas, anchos, diámetros y demás especificaciones según sea necesario.

Esta capacidad de ajuste paramétrico es esencial para garantizar la flexibilidad y la precisión en el proceso de diseño y planificación de proyectos. Al tener acceso a modelos detallados y paramétricos, los profesionales del sector pueden realizar análisis más exhaustivos, llevar a cabo simulaciones realistas y tomar decisiones informadas durante todas las etapas del proyecto.

Utilizamos cookies
Preferencias de las cookies
A continuación, encontrará información sobre los propósitos para los cuales nosotros y nuestros socios utilizamos cookies y procesamos datos. Puede establecer sus preferencias para el procesamiento y/o consultar más información en los sitios web de nuestros socios.
Cookies analíticas Desactivar todo
Cookies funcionales
Otras cookies
Utilizamos cookies para personalizar el contenido y los anuncios, proporcionar las funciones que utilizan las redes sociales y analizar nuestro tráfico. Obtener más información sobre nuestra política de cookies.
Aceptar todo Rechazar todo Cambiar las preferencias
Cookies